Home Search

Leave a Message

Thank you for your message. We will be in touch with you shortly.

Home Search

Property Description

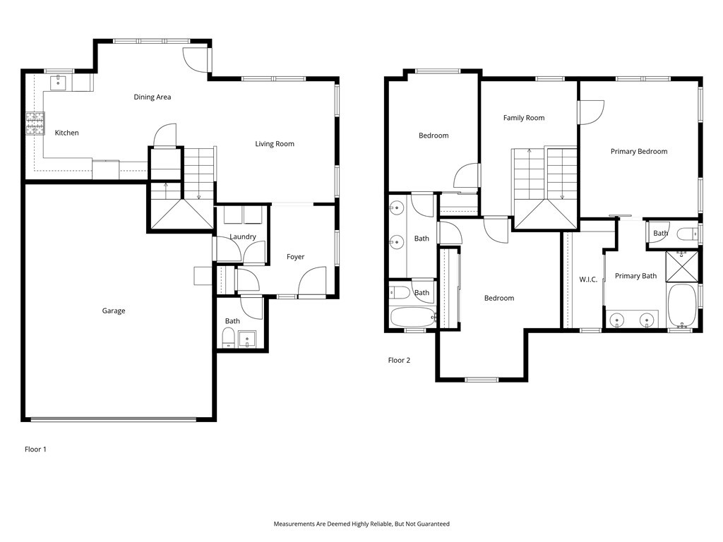
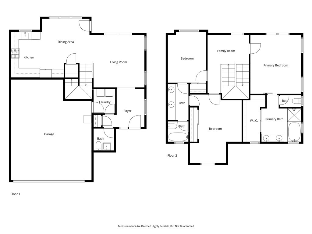
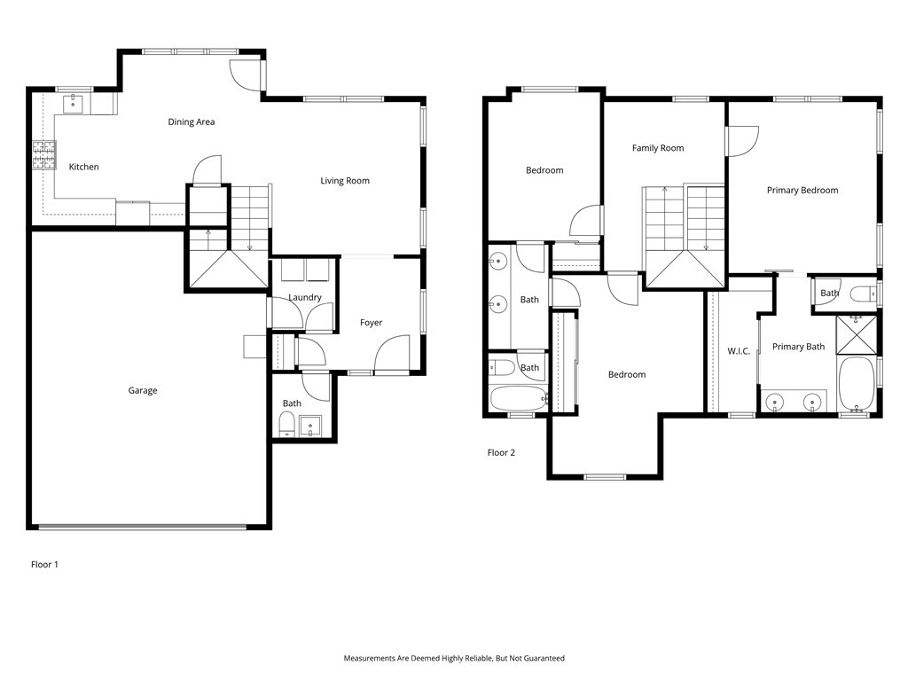
Discover this delightful and charming 3 bedroom, 2.5 bath end-unit located in Dove Creek within desirable south Atascadero. This home's open layout has a kitchen that opens directly to the living room and back patio for easy interaction and entertaining. Generously sized bedrooms, including a primary suite complete with shower, soaking tub, and spacious walk-in closet. Enjoy all the Central Coast lifestyle has to offer in this conveniently located community. Imagine having the peace and space of the Central Coast, all while being a less than 15-minute drive from the vibrant heart of San Luis Obispo. This isn't just a home, it's your private gateway to all the best of San Luis Obispo County. Stroll through the beautiful downtown Sunken Gardens with farmer's market and events throughout the year, head to the Atascadero Lake to see the Central Coast Zoo, then spend the afternoon exploring the fabulous shops and restaurants, vibrant micro-breweries, and winery tasting room scenes. You're just a 20-minute drive to the world-class vineyards of Paso Robles and the stunning coastline of Morro Bay. Ready to take a look?? Schedule your private viewing today!

Overview

Property Status
Sold
Lot Size
2,918.52 Sq.Ft.
MLS ID
NS25229493
Property Type
Condo
Year Built
2013

Features & Amenities

Neighborhood
San Luis Obispo County
Architecture Styles
Ranch
View Description
Park/Greenbelt, Neighborhood
Stories
1
Garage Spaces
2.0
Utilites
Cable Available, Electricity Available, Natural Gas Available, Phone Available, Sewer Available, Water Available
Pool
None
Roof
Common Roof, Tile
Lot Features
Front Yard, Landscaped
Parking
Driveway, Driveway Up Slope From Street, Garage, On Street
Heat Type
Forced Air
Air Conditioning
Central Air
Fireplace
None
Appliances
Dishwasher, Gas Range, Microwave, Refrigerator, Dryer, Washer
Other Interior Features
Granite Counters, All Bedrooms Up, Primary Suite, Utility Room
Sewer
Public Sewer
Substructure
Slab
Disability Features
Safe Emergency Egress from Home
HOA Amenities
Maintenance Front Yard, Playground, Trail(s)
School District
Atascadero Unified
Sales Price
$637,000
HOA
$184/mo

Downloads

11619 Cardelina

Schedule a Tour

We would love to help you see this beautiful home! As a full-service brokerage, we can help you tour. Please submit an offer, and answer questions about the buying process.

Thank you

for your interest in 11619 Cardelina, Atascadero, CA 93422

I'm Interested In

11619 Cardelina

or
  • CallCody Wilcoxson

    License #01847871

    (805) 748-2477
  • 11619 Cardelina
    Navigate
    San Luis Obispo County

    Explore San Luis Obispo County

    read more
    11619 Cardelina
    explore in 3d

    Browse Our

    Featured Properties

    • 258 Albert Drive Sold

      $1,875,000

      258 Albert Drive, San Luis Obispo, CA 93405

      • 4 Beds
      • 2 Baths
      • 1,400 Sq.Ft.
    • 2665 Belgian Place Sold

      $1,331,005

      2665 Belgian Place, Arroyo Grande, CA 93420

      • 3 Beds
      • 3 Baths
      • 3,141 Sq.Ft.
    • 2280 Callender Road Sold

      $1,245,000

      2280 Callender Road, Arroyo Grande, CA 93420

      • 3 Beds
      • 2 Baths
      • 1,497 Sq.Ft.
    • 421 Burlwood Lane Sold

      $1,200,000

      421 Burlwood Lane, Templeton, CA 93465

      • 3 Beds
      • 2 Baths
      • 2,243 Sq.Ft.
    • 2655 San Fernando Road Sold

      $1,100,000

      2655 San Fernando Road, Atascadero, CA 93422

      • 2 Beds
      • 3 Baths
      • 2,489 Sq.Ft.
    • 4455 Whispering Oak Way Sold

      $1,050,000

      4455 Whispering Oak Way, Paso Robles, CA 93446

      • 3 Beds
      • 2 Baths
      • 1,822 Sq.Ft.
    • 1265 Galleon Way Sold

      $965,000

      1265 Galleon Way, San Luis Obispo, CA 93405

      • 3 Beds
      • 2 Baths
      • 1,407 Sq.Ft.
    • 2380 Ashwood Place Sold

      $950,000

      2380 Ashwood Place, Paso Robles, CA 93446

      • 3 Beds
      • 3 Baths
      • 3,500 Sq.Ft.
    • 8400 Atascadero Avenue Sold

      $925,000

      8400 Atascadero Avenue, Atascadero, CA 93422

      • 5 Beds
      • 5 Baths
      • 2,611 Sq.Ft.
    • 351 Beech Court Sold

      $920,000

      351 Beech Court, Buellton, CA 93427

      • 5 Beds
      • 3 Baths
      • 3,057 Sq.Ft.
    • 351 Beech Court Sold

      $920,000

      351 Beech Court, Buellton, CA 93427

      • 5 Beds
      • 3 Baths
      • 3,057 Sq.Ft.
    • 244 2nd Sold

      $875,000

      244 2nd, Buellton, CA 93427

      • 3 Beds
      • 3 Baths
      • 1,661 Sq.Ft.
    • 244 2nd Street Sold

      $875,000

      244 2nd Street, Buellton, CA 93427

      • 3 Beds
      • 2.5 Baths
      • 1,661 Sq.Ft.
    • 104 16th Street Sold

      $860,000

      104 16th Street, Paso Robles, CA 93446

      • 3 Beds
      • 2 Baths
      • 1,101 Sq.Ft.
    • 1714 Highland Park Dr Sold

      $840,000

      1714 Highland Park Dr, Paso Robles, CA 93446

      • 3 Beds
      • 2 Baths
      • 1,255 Sq.Ft.
    • 190 Valley View Sold

      $775,000

      190 Valley View, Avila Beach, CA 93424

      • 3 Beds
      • 3 Baths
      • 1,800 Sq.Ft.
    • 709 Faeh Avenue Sold

      $775,000

      709 Faeh Avenue, Arroyo Grande, CA 93420

      • 3 Beds
      • 2 Baths
      • 1,586 Sq.Ft.
    • 2755 Taft Place Sold

      $758,000

      2755 Taft Place, Cambria, CA 93428

      • 3 Beds
      • 3 Baths
      • 1,330 Sq.Ft.
    • 418 Appaloosa Drive Sold

      $725,000

      418 Appaloosa Drive, Paso Robles, CA 93446

      • 3 Beds
      • 2 Baths
      • 1,774 Sq.Ft.
    • 1503 Las Brisas Sold

      $717,000

      1503 Las Brisas, Paso Robles, CA 93446

      • 3 Beds
      • 2 Baths
      • 1,467 Sq.Ft.
    • 1458 Oswego Way Sold

      $707,000

      1458 Oswego Way, Santa Maria, CA 93455

      • 3 Beds
      • 2 Baths
      • 1,440 Sq.Ft.
    • 11619 Cardelina Sold

      $637,000

      11619 Cardelina, Atascadero, CA 93422

      • 3 Beds
      • 3 Baths
      • 1,733 Sq.Ft.
    • 4470 Cayucos Avenue Sold

      $635,000

      4470 Cayucos Avenue, Atascadero, CA 93422

      • 3 Beds
      • 2 Baths
      • 1,369 Sq.Ft.
    • 11619 Cardelina Lane 211 Sold

      $570,000

      11619 Cardelina Lane 211, Atascadero, CA 93422

      • 3 Beds
      • 3 Baths
      • 1,733 Sq.Ft.
    • 1309 E Olive Sold

      $550,000

      1309 E Olive, Lompoc, CA 93436

      • 3 Beds
      • 3 Baths
      • 2,572 Sq.Ft.
    • 5109 Bluebird Active Under Contract

      $519,000

      5109 Bluebird Lane, Paso Robles, CA 93446

      • 2 Beds
      • 2 Baths
      • 1,195 Sq.Ft.
    • 2318 Ridge Rider Road Sold

      $510,000

      2318 Ridge Rider Road, Bradley, CA 93426

      • 2 Beds
      • 2 Baths
      • 1,024 Sq.Ft.
    • 329 Sunnyslope Lane Sold

      $500,000

      329 Sunnyslope Lane, Nipomo, CA 93444

      • 2 Beds
      • 2 Baths
      • 1,033 Sq.Ft.
    • 2628 Saddle Back For Sale

      $455,000

      2628 Saddle Back, Paso Robles, CA 93446

      • 3 Beds
      • 2 Baths
      • 1,425 Sq.Ft.
    • 4 Dove Court For Sale

      $359,000

      4 Dove Court, Paso Robles, CA 93446

      • 2 Beds
      • 2 Baths
      • 1,536 Sq.Ft.
    • 245 Partridge Avenue Sold

      $328,800

      245 Partridge Avenue, Paso Robles, CA 93446

      • 2 Beds
      • 2 Baths
      • 1,440 Sq.Ft.
    • 2253 Lariat Loop Sold

      $309,000

      2253 Lariat Loop, Bradley, CA 93426

      • 3 Beds
      • 2 Baths
      • 1,776 Sq.Ft.
    • 3500 Bullock Lane 73 Sold

      $230,000

      3500 Bullock Lane 73, San Luis Obispo, CA 93401

      • 2 Beds
      • 1 Bath
      • 900 Sq.Ft.
    • 9191 San Diego Way 2 Sold

      $175,000

      9191 San Diego Way 2, Atascadero, CA 93422

      • 3 Beds
      • 2 Baths
      • 1,232 Sq.Ft.
    View All

    Follow Us On Instagram